Od przyjaźni do współpracy – apartament dla rodziny 2+1

Artykuł na podstawie materiałów prasowych

Od przyjaźni do współpracy – apartament dla rodziny 2+1

Na warszawskim Bemowie znajduje się mieszkanie, które przeszło gruntowną metamorfozę. Rodzina zna się od dawna z architektką, zatem doskonale wiedzieli, czego mogą od siebie oczekiwać. Projekt oraz nadzór nad realizacją spoczął na barkach Joanny Lemki-Wójcik z pracowni jlw studio.
1:00 min
0
0

Geneza projektu


Gospodarze to dobrzy znajomi architektki bowiem kobiety poznały się na spotkaniach dla mam. Relacja ta sprawiła, iż projektantka świetnie znała codzienność, potrzeby i dylematy inwestorów. Nie była to ich pierwsza prośba o podjęcie współpracy. Jednak poprzednim razem, gdy padła prośba o przearanżowanie poprzedniego lokum, nastąpiła świadoma odmowa. Architektka uzasadniła swoją decyzję świadomością, iż efekt nie przyniesie realnej poprawy komfortu życia.

Autor:
Redakcja
Data:
08.12.2025
jlw studio_wnętrze bemowo (9)-min.jpg
Fot. Materiały prasowe jlw studio

Zdaniem architektki zmiana poprzedniego lokum była nieopłacalna ze względu na jego zbyt mały metraż. Dotychczas codziennością było spanie na kanapie w salonie, łóżko-szafa rozkładane co wieczór, wspólna sypialnia z coraz starszym dzieckiem czy praca przy kuchennym stole. Gospodarze potrzebowali dodatkowego pomieszczenia, zatem podjęli decyzję o zmianie mieszkanie na większe.

jlw studio_wnętrze bemowo (10)-min.jpg
Fot. Materiały prasowe jlw studio
jlw studio_wnętrze bemowo (1)-min.jpg
Fot. Materiały prasowe jlw studio
jlw studio_wnętrze bemowo (2)-min.jpg
Fot. Materiały prasowe jlw studio

Nowe początki

Pierwotnie gospodarze byli zaskoczeni szczerością architektki. Jednak już po kilku miesiącach wrócili z prośbą o wspólne obejrzenie mieszkania, które planowali nabyć. Następnie stanęli przed nie lada wyzwaniem spięcia w czasie sprzedaży poprzedniej nieruchomości, kredytu kupującego, zakupu mieszkania oraz pełnego projektu wnętrza i remontu. Całość przebiegła sprawnie dzięki współpracy z zaufanymi dostawcami i wykonawcami oraz zastosowaniu sprawdzonych rozwiązań projektowych. Mimo ambitnie założonego terminu wszystko udało się zrealizować zgodnie z planem.

jlw studio_wnętrze bemowo (15)-min.jpg
Fot. Materiały prasowe jlw studio
jlw studio_wnętrze bemowo (18)-min.jpg
Fot. Materiały prasowe jlw studio
jlw studio_wnętrze bemowo (17)-min.jpg
Fot. Materiały prasowe jlw studio
jlw studio_wnętrze bemowo (4)-min.jpg
Fot. Materiały prasowe jlw studio

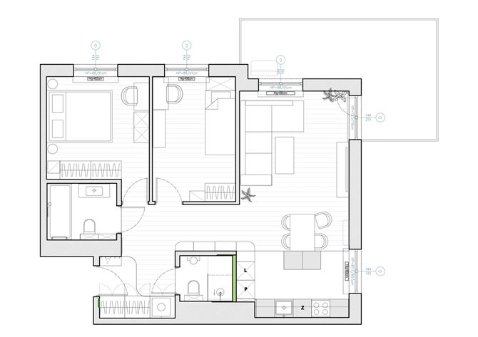
Rzut mieszkania

jlw studio_bemowo_rzut-min.jpg
Fot. Materiały prasowe jlw studio

Wnętrze z charakterem

Na nowy projekt bez wątpienia przełożył się fakt, iż gospodarze polubili wiele rozwiązań, materiałów i kolorów z mieszkania projektantki. Bazą kolorystyczną oparto na beżu, błękitach i granacie dopełnione armaturą z miedzi szczotkowanej oraz ceglastymi akcentami. Zachowanie takiej palety barw pozwoliło na uzyskanie przytulnego wnętrza, które jednocześnie prezentuje się elegancko i nowocześnie.

jlw studio_wnętrze bemowo (19)-min.jpg
Fot. Materiały prasowe jlw studio
jlw studio_wnętrze bemowo (20)-min.jpg
Fot. Materiały prasowe jlw studio

Do najważniejszych zmian bez wątpienia można powiększenie WC, aby było możliwe stworzenie drugiej łazienki z prysznicem. Przestrzeń tę udało się uzyskać dzięki mało użytecznej wnęki kuchennej, co znacznie poprawiło komfort codziennego funkcjonowania rodziny.

Za centralny punkt mieszkania uznaje się kuchnię z wykonaną na wymiar zabudowę meblową, zakończoną eleganckim łukiem. Łączy on aneks kuchenny z regałem w przedpokoju, subtelnie integrując strefy i dodając wnętrzu subtelności i lekkości.


Projekt i nadzór nad realizacją: Joanna Lemka-Wójcikk, jlw studio

Przed i po remoncie

jlw studio_wnętrze dla rodziny 2 plus 1_przed i po remoncie_1-min.png
Fot. Materiały prasowe jlw studio
jlw studio_wnętrze dla rodziny 2 plus 1_przed i po remoncie_2-min.png
Fot. Materiały prasowe jlw studio
jlw studio_wnętrze dla rodziny 2 plus 1_przed i po remoncie_3-min.png
Fot. Materiały prasowe jlw studio
jlw studio_wnętrze dla rodziny 2 plus 1_przed i po remoncie_4-min.png
Fot. Materiały prasowe jlw studio
jlw studio_wnętrze dla rodziny 2 plus 1_przed i po remoncie_5-min.png
Fot. Materiały prasowe jlw studio
jlw studio_wnętrze dla rodziny 2 plus 1_przed i po remoncie_6-min.png
Fot. Materiały prasowe jlw studio

Polecane artykuły:

W otoczeniu lasu. Nowoczesny dom dla rodziny
W zielonej podwarszawskiej okolicy znajduje się dom otwarty na otaczającą go naturę. Przebywając w części dziennej, nie spogląda...
Kaszmirowe wnętrza rodzinnego domu w Mławie
Styl modern clasic jest wyrafinowany i harmonijny, a przy tym bardzo komfortowy w użytkowaniu. Stosowane w tych wnętrzach...